Bruselas 9
Ubicación: Ciudad de México
Año: 2016
Superficie construida: 1,048.44 m2
Desarrollo: Jaime Miranda, Roberto Zermeño
Equipo: Carlos Hernández, Adán Cortés
Fotografía: Onnis Luque
Bruselas 9: Minimalismo contemporáneo en la Colonia Juárez
Concepto arquitectónico
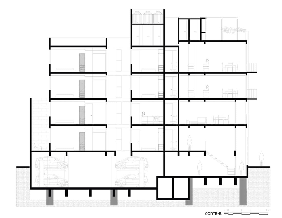
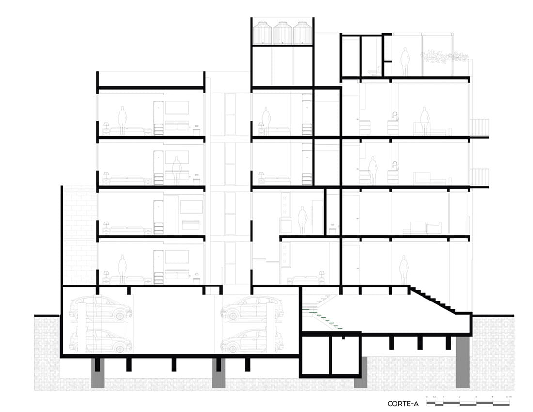
Bruselas 9 transformó radicalmente un predio de 250 m² en la colonia Juárez. Concretamente, desarrollamos un edificio de 7 departamentos (de 100 m² en promedio) que incluye un semisótano de estacionamiento. Nuestro principal objetivo consistió en crear una estructura de concreto armado sencilla pero altamente eficiente. Además de esto, incorporamos grandes vanos con el fin de maximizar la iluminación natural. Asimismo, el uso estratégico de block de concreto aparente no solo aportó carácter arquitectónico, sino que también permitió importantes ahorros constructivos.
Diseño de fachada de Bruselas 9
Concebimos una fachada diáfana que se va abriendo progresivamente con la altura:
En primer nivel, implementamos una celosía de concreto que regula cuidadosamente la integración con el andador peatonal
En cuanto al último nivel, incrementamos la altura libre 60 cm con el objetivo de ganar luminosidad y amplitud
Este diseño inteligente crea no solamente un juego volumétrico dinámico, sino que además mantiene una coherencia estética notable.
Paleta material y atmosférica
En lo que respecta a los materiales, Bruselas 9 combina armoniosamente:
Concreto armado aparente (que destaca por ser pragmático y resistente)
Celosías de concreto que filtran la luz natural
Laqueado azul índigo para aportar profundidad cromática
Iluminación ámbar que genera calidez ambiental
Gracias a esta cuidadosa selección, logramos por un lado una atmósfera serena que contrasta deliberadamente con el bullicio característico de la Juárez.
Sistema constructivo
Es fundamental señalar que la ejecución de Bruselas 9 resultó notablemente eficiente:
En primer lugar, la estructura de concreto armado fue simplificada al máximo
Posteriormente, los muros de carga se realizaron en block de concreto
Finalmente, el mantenimiento es mínimo debido a las excelentes propiedades del concreto
En resumen, esta simplicidad constructiva generó no solo una belleza honesta, sino también soluciones prácticas sin pretensiones.
Detalles de acabados
Los acabados seleccionados refuerzan el concepto integral:
En el exterior: cancelería de aluminio champagne con cristal claro
En los interiores: plafones blancos combinados con piso laminado claro
Como elemento destacado: el block aparente acentúa el pasillo longitudinal de distribución
En definitiva, Bruselas 9 demuestra fehacientemente cómo:
- Por una parte, la sencillez constructiva puede generar espacios de alta calidad
- Por otra parte, los materiales básicos bien ejecutados envejecen con dignidad
Como valor añadido, el diseño consciente crea ambientes profundamente armónicos
Todo esto se logró sin tener que sacrificar ni funcionalidad ni presupuesto, lo que convierte a este proyecto en un ejemplo de arquitectura eficiente y sensible al contexto urbano.
