Guanajuato 156
Ubicación: Ciudad de México
Año: 2014
Superficie construida: 1,433.53 m2
Desarrollo: Jaime Miranda, Roberto Zermeño, Isaac Cielak, Carlos Ruiz-Galindo
Equipo: Adán Cortés
Fotografía: Rafael Gamo
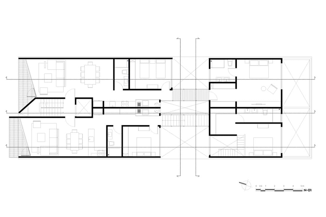
Es importante destacar que Guanajuato 156 representa un hito en el diseño contemporáneo. Para ilustrar mejor esto, su sistema estructural basado en puentes no solo organiza los espacios, sino que además establece un diálogo perfecto entre forma y función. Concretamente, estos elementos separan las áreas sociales (sala, comedor y cocina) al mismo tiempo que integran armoniosamente las zonas privadas (recámara y baño principal). Asimismo, cumplen un rol estructural clave al vincular los dos volúmenes principales del edificio.
Los puentes son clave en la estructura. Funcionan como grandes trabes que unen los dos volúmenes del edificio.
En lo que respecta a los aspectos técnicos, cabe señalar que las soluciones implementadas son particularmente innovadoras. En primer término, la cimentación utiliza un sistema de cajón con contratrabes de gran peralte, lo que sin duda garantiza una base extraordinariamente estable. A continuación, en los niveles superiores se combinaron estratégicamente muros de carga con trabes de concreto armado. Para reforzar esta solución, se incorporaron vigas de acero y un sistema de entrepisos con casetones de poliestireno. En consecuencia, se logró una estructura notablemente ligera pero excepcionalmente resistente.
Centrándonos ahora en la distribución espacial, podemos afirmar que Guanajuato 156 alcanza aquí su mayor innovación. Especialmente relevante es la integración de cocina y sala en una única estancia multifuncional. Por una parte, elimina barreras físicas innecesarias, y por otra, promueve la interacción social espontánea. De igual importancia resulta el sistema de ventilación cruzada implementado, mediante el cual todos los espacios disfrutan de confort térmico natural y eficiencia energética.
En cuanto al diseño interior, hay que subrayar que el proyecto muestra un equilibrio excepcional. Como muestra de ello, las dobles alturas en áreas estratégicas, si bien implican mayor inversión, elevan sustancialmente la calidad espacial. De manera similar, los acabados minimalistas con escaleras flotantes y barandales de acero no únicamente aportan elegancia contemporánea, sino que paralelamente reducen el peso estructural total.


Para concluir, Guanajuato 156 se erige como paradigma arquitectónico. En síntesis, cada decisión de proyecto, desde los aspectos estructurales hasta los detalles de acabado, fue cuidadosamente planificada. Por lo tanto, el resultado es un espacio donde convergen innovación técnica, funcionalidad práctica y belleza estética. En definitiva, este proyecto demuestra fehacientemente que es posible crear soluciones habitacionales inteligentes sin transigir en diseño vanguardista.
